美迪装饰

高品质装修选美迪

十年后仍爱我家

24小时咨询热线

400-096-6088

您的位置: 首页 > 家装百科 > 装修日记 > 110平米新房装修选什么风格?这个女主人突发奇想

110平米新房装修选什么风格?这个女主人突发奇想

浏览数:5265次 | 发布时间:2018-06-08 |
分享到:

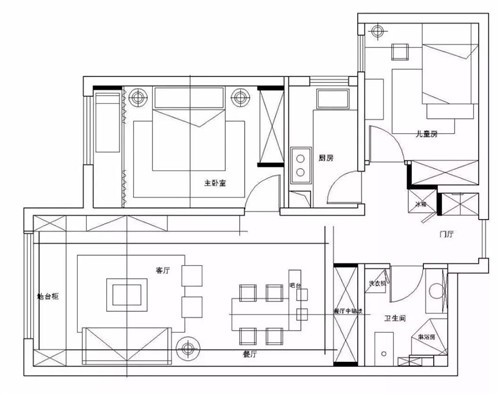
110平米新房装修应该怎么做?这位女主人偏爱简约时尚的美式风格,同时注意空间的利用,设置了大面积的收纳柜,在保持实用的功能基础上,打造出一个温馨又大方的新居。

户型图

 

客厅

客厅摆一套现代舒适质感的皮沙发,挂上一幅草原+麋鹿的装饰画,并在墙角装一个搁板;而靠窗边位置则是装一个收纳飘窗,整个空间搭配的效果现代优雅而又舒适;

沙发侧边的小边几,摆上几只黄色的可爱长颈鹿装饰,妆点在这个空间内,让空间更是显得生动有趣;

电视墙集合了收纳、电视、书架等功能在一体,中间位置腾空出电视位置,上方下方都是收纳柜,而两侧则装着大面积的书架,摆满了主人爱看的一些书籍;

窗边的飘窗摆一套小茶桌,在这里既可以品茶赏人生,又能在午后惬意地阅读放松;

整个客厅餐厅空间连贯通都,在满足了丰富的收纳功能基础下,搭配上美感的装饰,打造出一种现代惬意的生活气息;

餐厅

餐厅布置一套独特极简造型的硬塑餐桌椅,搭配一盏黑色铁艺架的三拼吊灯,整体显得现代简洁又优雅大方;

餐桌面上的精致摆饰,整体显得优雅而又端庄大方;

靠着餐桌的背后,还有一张吧台,可以充当书桌功能;

墙面采用上中下部分3个不同的颜色,搭配起来的效果也是格外的独特;

 

主卧

主卧的床头靠垫是黑色皮艺的,床头挂一幅林中小鹿装饰画,而卧室开门对着的这面墙则挂满了装饰画,整体空间显得格外的创意舒适;

床头一幅羽毛装饰画,搭配在这个空间里,显得轻盈又舒适活力;

 

儿童房

儿童房墙面以世界地图的造型墙饰,床头后方则是一个书架,整个床也是实用的收纳,搭配一套小黄人床单,整个空间都显得活力自然。

 

分享到:

相关阅读

免费获取报价