家,是人们身体乃至灵魂依托的港湾,一切以人为本,丢弃冗杂的布置才可回归生活的本质。当你摆脱一切不需要的设计语言会带来一种激动人心的东西—“纯净”。本案的设计中,设计师致力于打造都市生活中的心灵之所,在繁忙生活中寻找生活美学的深层意义。
本期《来我家》要走近某电台知名主持人的180㎡现代风格新家,这个兼具实用性与审美性的品质居家空间,绝对会让你眼前一亮。
INFORMATION
「项目信息」
现代轻奢
项目地址:北辰定江洋
项目面积:180㎡
项目风格:现代轻奢
全案设计:美迪装饰杨敏
项目用材:木饰面、定制烤漆板、墙布、定制硬包、木地板、素色亚光砖
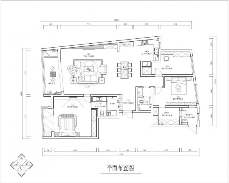
FLOOR PLAN
「平面布置方案」
本案在空间上改造不大,整体以灰白黑色系呈现,大理石圆桌、金属材质、深色皮质沙发,表达出干练简洁的空间语言,通透的视线感营造舒适的氛围。回到家里就是回到最初始的纯净状态,这正是业主所希望营造的本意生活。
ANALYSIS
「空间分析」

SHOPPING LIST
「购物清单」

INTERVIEW
「业主采访」
1、美迪装饰:在装修期间你遇到的最大挑战是什么?
业主:在装修期间,我遇到最大的挑战就是在设计初期,因为不知道自己想要什么风格,什么样子,完全是装修小白。因为装修是个不可逆的行为,如果装修完了,不符合自己的品味,就会很麻烦。
2、美迪装饰:你家里有哪个地方或者装修期间有哪个阶段是令你感到最遗憾且值得改进地方吗?
业主:没有遗憾,我们一家人都很满意。
3、美迪装饰:在整个装修过程中,你觉得美迪装饰的设计师、施工人员等带给你最大的感受是什么呢?
业主:美迪的设计师和施工人员给我最大的感受就是很勤恳,很敬业,尤其是项目经理很负责任,很有担当,有什么事情都会第一时间帮我们解决。
4、美迪装饰:你在装修和家居布置中可以给其他人一些建议吗?
业主:在装修和家居布置中,一定要以生活舒适为前提,不要一味的追求时尚,而应该是在满足舒适的基础上去尝试一些时尚新潮的挑战。
DESIGNER
「本案设计师」

美迪总店首席设计师_杨敏
从业12年
毕业于长沙理工大学设计艺术学院
进修于清华大学美术学院
中国建筑学会室内设计分会会员
— 获奖经历 —
2008中国室内设计大奖赛佳作奖
2010年海峡两岸四地室内设计大赛居住工程类优秀奖
2011年获湖南省室内设计大奖赛家居实例类银奖
2013获第四届中国国际空间环境艺术设计大赛金奖提名
2014年获湖南省室内装饰行业优秀设计师
如果你也想装一个这样的新家,美迪装饰家装盛典年度客户感恩答谢会暨2019首批感恩代言房火热征集中,千万豪礼钜惠感恩回馈。
“2018美迪装饰最受欢迎的实景作品评选”即将启幕,敬请期待!
提交您的信息专业家装顾问1对1服务
免费电话申请: 18684928503
马上提交申请即送1000元家装抵用券