美迪装饰

高品质装修选美迪

十年后仍爱我家

24小时咨询热线

400-096-6088

您的位置: 首页 > 家装百科 > 美家记 > 来我家 | 当沉静蓝遇上热情黄,180㎡现代空间立马灵动起来!

来我家 | 当沉静蓝遇上热情黄,180㎡现代空间立马灵动起来!

浏览数:6828次 | 发布时间:2018-12-12 |
分享到:

本期《来我家》要带大家走进一个超幸福的三口之家(应该说是五口之家,因为还有两只超可爱的狗狗)。这个180㎡的现代简约风格新家,以舒适的灰色调为主,点缀活泼的蓝色和黄色,使整个空间更加有活力。

今天就跟着小美一起来看看这幸福的五口之家吧!

房主杨姐特别喜欢研究菜品,经常在家做西点,追求精致的生活。设计师在设计中尽可能减少隔墙,弱化视觉阻碍的同时放大空间的通透性,从而使整体空间氛围更加简洁典雅。在色彩方面,采用对比色相搭配法,体现出空间的视觉焦点,彰显活力。

房屋信息

房子位置_ 鑫远和城

面积户型_180平四房一厅三卫

装修总花费_24万

装修花费总时长_6个月

家居风格_现代简约风

家中最爱_客厅、吧台

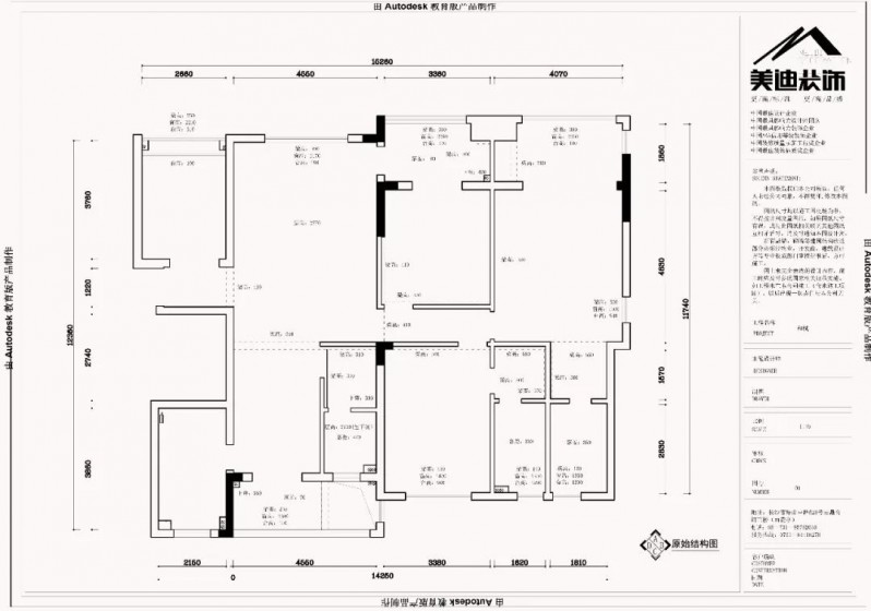
原始结构图


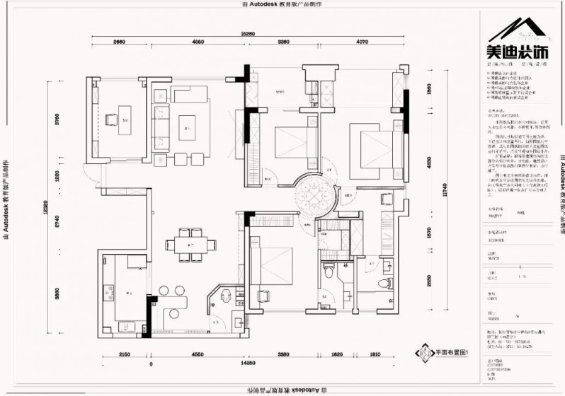
平面布置图


户型改造:空间布局没有大改动,根据业主个性需求设计了富有情调的吧台和独立的书房电玩室,小孩房单独设置了一个更换衣物的小空间。

▲客厅区域

整个空间调性以灰色为主,凸显空间质感,沉静的深蓝色皮质沙发与活泼黄色调的枕头点缀使空间亮了起来。

▲客厅区域

客厅上的吊灯,也是极具设计与线条感,与壁画的搭配相辅相成。

▲客厅区域

客厅艺术挂画是设计师为业主精心挑选的,建筑的灰白调,以及层次分明的线条感,极大程度上提升了整个空间的格调。

▲餐厅区域

打造了一个开放式家居,客餐厅一体化使空间更加流畅。墙面挂画更显自然原生态,符合餐厅饮食的设计风格。

▲吧台

设计师根据业主个性需求,打造了一个客厅、餐厅、吧台三位一体的空间,吧台旁边是柜子和微波炉,方便业主平时制作西点,一家人在此品味精美的西点,感受生活中的小情调。


业主还养了两只雪纳瑞,一只叫“点点”一只叫“可乐”小房子,是不是超可爱呢。

更多空间细节



一问一答


1、美迪装饰:你为什么会选择美迪装饰?

杨姐:半年前我们就来美迪了解过,设计师龙思洛老师的方案与服务给我们留下了深刻的印象。但是我们不是很着急入住,所以在半年内考察过十几家装修公司与工作室,几经对比下还是觉得美迪的设计方案更完美,也相信美迪装饰的实力,所以选择了美迪。

2、美迪装饰:装修后您对新家的哪些地方最满意呢?

杨姐:每个地方都很满意,特别是吧台,设计师龙思洛老师为我们亲自挑选了软装配饰,我觉得挺符合这个整体的装修布局,非常用心。

3、美迪装饰:在整个装修过程中,你觉得美迪装饰的设计师、施工人员等工作人员带给你最大的感受是什么呢?

杨姐:“专业”应该是美迪给我的最大感受。设计师了解了我们的需求后,在设计上达到了功能性和美观性兼顾的效果。包括客服经理、项目经理的服务都非常专业,每次我提出的问题都会立马解决,所以整个装修过程很省心。

分享到:

相关阅读

免费获取报价