简欧风格既有欧式的浪漫,同时又保留了欧式风格的华丽。本期《美家记》带你走进欧姐三口之家,简欧风格舒适优雅,也更符合欧姐对生活品质的新追求。
美家信息
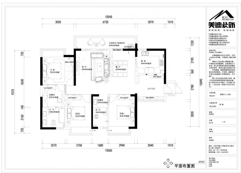
楼盘:荣悦台
户型:三室两厅
面积:140平米
风格:简欧风格
造价:13万
设计师:高旸
美家欣赏
玄关
进门玄关设计很简单,一侧的白色柜子能容纳衣服、鞋子和包包,也可以放一些出门随手物品。
餐厅
从门厅进入就被左手旁的壁画所吸引,大海边的白鸽栩栩如生,为整个墙面增添了一份灵性。
右手边就是餐厅,实木色的方桌和整体的白色墙面相呼应,让整个空间都显得很饱满。
为了能和外部空间有互动,设计师高旸在餐厅窗洞的位置做了欧式风独特造型,既保留了窗户功能,又有着浓浓的简欧风情。
厨房、餐厅和客厅的动线也安排的十分合理,用推拉门分隔餐厅和厨房;白色小矮柜分离餐厅和客厅。虽是一条线,但有三个不同的区域,让家人在厨房做饭的时候还能看到外面的光景,岂不美哉!
客厅
客厅采用浅灰色沙发与黄色窗帘搭配,靠垫和绿植做为点缀,整个空间暖色调又上升了几个度。
深色茶几和电视柜又与整体浅色相碰撞,多添加了几分层次感。
电视背景墙大面积选用大理石材质,整体光泽细腻,清晰可见的纹理交错,营造出一个质感的空间,空间整体统一有序。
古的吊顶又与茶几相呼应,这个角度望去,线条简洁,厨房的景象若隐若现。
卧室
欧姐加班非常频繁,甚至要熬大夜,卧室对于她来说极其重要。什么地方的卧室最舒服?当然是五星级酒店啊!所以欧姐的卧室参考了五星级酒店的标准。
采用大面积的白色,加上粉灰色的窗帘点缀,卧室的整体设计是比较通透和明亮。小巧的床头椅功能性很强,不管是摆放装饰还是放置小物品都绰绰有余。
床对面就是储物柜,白色的储物柜感觉只是一面墙,丝毫不觉得狭小。墙面一体的柜子设计了很多隔层,面积不大,收纳功却能很强。
衣帽间合理的分离了卧室和厕所,为避免卫生间正对主卧,用对角布局设立了全身镜和梳妆台相对,不仅空间宽阔,还可以全方位看到自己。灯饰形状特别精致,暖色系灯光照射在墙面,五角星形状拉长形成光影,带着一丝活泼的气息。
次卧是欧姐为父母安排的房间,以简单为主,大气不平凡,沉稳的蓝色衣柜呼应蓝白色格子床单,非常的精致。
卫生间
卫生间是家中比较隐秘的地方,所以欧姐特意在各大平台寻找定制推拉门来隔离厕所,墙面的设计是欧姐喜欢的,瓷砖突出的立体感加上白色浴缸,泡澡简直成了一种享受。
美家分析
1.因为想改的地方都是承重墙,所以房子本身没做很大的改动。但是高旸设计师巧妙地设计家居布局,让整个空间放大了几倍。
2.高旸设计师考虑到女主人的需求,把卧室衣帽间向外“挪”了一下,梳妆台设计到衣帽间的区域,卧室看起来就更宽敞明亮。
3.为避免了卫生间门正对主卧,用对角布局设立了全身镜和梳妆台相对,业主可以全方位的看到自己。

美家故事
欧姐是一位白衣天使,每天的工作忙绿而充实,购置这套房子是为了工作方便。在装修前,欧姐确定了简欧风格,在软装的部分,都是她亲自选购,细致的她在选购厕所推拉门方面都能做到极致。
栏目后记
在采访的时候欧姐说道:“刚装修那会儿是夏天,正是最热的时候,我过去看下工地进行的怎么样,在工地呆半个小时都要热得晕厥了,但是施工人员依然坚守在岗位,整个施工现场井然有序,我当时就想,选择美迪果然没错。”
提交您的信息专业家装顾问1对1服务
免费电话申请: 18684928503
马上提交申请即送1000元家装抵用券