美迪装饰

高品质装修选美迪

十年后仍爱我家

24小时咨询热线

400-096-6088

您的位置: 首页 > 家装百科 > 美家记 > 美家记 | 长沙夫妻花18万打造155㎡三居室,巧用隔断增大空间

美家记 | 长沙夫妻花18万打造155㎡三居室,巧用隔断增大空间

浏览数:7145次 | 发布时间:2018-11-15 |
分享到:

本期《美家记》给大家带来一套北欧混美式的案例作品,房主喜欢北欧风格中色彩的丰富,又青睐于美式温馨的氛围,这套作品正如唱民谣玩摇滚的设计师石顺凡的诠释,时髦又有范儿!


房主从事于电商行业,购置这套房子是为了和父母居住,也方便女儿上学。一家五口希望自己的家是温馨舒适而有质感的,设计师石顺凡将整体设计定位为北欧自然的感觉,穿插现代美式的一些家具元素,色彩上达到协调统一,有主有次,不会凌乱。



客厅设计具有美式风格的大气典雅,同时带有些许北欧时尚简约感,空间偏理性低调,线条简洁利落,丝毫不拖沓,快节奏中又带着一丝慢调。



客厅采用布艺沙发皮质沙发混搭。深色的皮质沙发展现出一丝沉稳,米色的布艺沙发软化空间的线条,更显温馨自然。



浅蓝色背景墙与墨蓝色皮沙发呼应却又有区别,层次美才是最高级的美。



白色的电视背景墙,内嵌造型的设计,对称的布局,彰显空间的大气雅致,几盏壁灯与随意放置的装饰丰富了墙面,也突显质感



墙面上的挂画,为空间添了一份艺术色彩。赋有简约美式韵味的柜体造型,线条清晰,做工精细,让整个空间饱满稳重



从客厅望向餐厅,通透明亮,布局合理,动线顺畅,采用玻璃移门作厨房门片,将公共领域的光线注入采光较弱的料理区域。





木质的餐桌搭配简单的餐椅散发着浓郁的美式气息,简单两副装饰画就避免了墙面的空洞感,灯具也很简单实用。



美式厨房,简洁明亮,厨房地面通铺花砖,立面小白砖搭配白色橱柜,深色麻点台面耐脏易打理。



原本的餐厅空间过于狭小,因此牺牲了卫生间的一点空间,增加了厨房的操作空间,L字型的地柜与吊柜让厨房没有收纳的困扰。




步入卧室的过道,用经典的大白墙+装饰画布置,形成干净简洁的层次感。



主卧是屋主为父母安排的房间,通过取其神韵不摆其形的风雅意境,使得整个空间呈现出典雅又不乏时尚的特色,简约轻盈,无疑不体现了空间清雅自然



飘窗双层窗帘比较灵活,能随意调整光线,且通风透气的效果都很好。



次卧居住的是男主人和女主人,选用绿色调作为床头背景,多了一份清爽和生动,给人宁静舒缓的感受。床头柜旁放置了梳妆台,增添空间机能,床头的羽毛装饰点亮了整个卧室,美得很有特色也很有个性


儿童房是屋主最满意的设计,装饰以可爱为主,壁画十分有趣。橙色的床头柜,轻盈的吊灯,都带着活泼的气息。



儿童房是改造的重点,屋主想给女儿一个更好的成长空间,设计师将两间房间打通,让儿童房更加明亮,增添了个迷你书房,活动空间更大




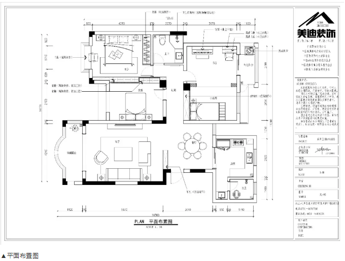
户型优缺:


房子属于旧房改造,原本厨房和卫生间相邻,厨房偏小,主卧和次卧储物空间太少。户型的开间和进深的比例比较合适,方正的户型能做到采光通风与保温两者间的平衡。动线安排合理,从入户门进客厅、卧室、厨房的轨迹不会发生交叉。


改造亮点:


1、设计师石顺凡将两间房打通,使儿童房空间明亮,打造了一个集学习和娱乐一体,充满童趣的活动空间。

2、为了增加厨房的操作空间,牺牲了一些卫生间空间。

3、设计师石顺凡将主卧和次卧之间的墙体改造成收纳的柜子,增加了收纳,合理地利用了空间。



分享到:

相关阅读

免费获取报价